吉林長春石油化工用單級反滲透設備項目
1.項目概述:
項目名稱:吉林長春石油化工用單級反滲透設備項目
項目地點:吉林長春
工程狀態:已交付
2.工程介紹
吉林長春某有限公司成立于2013年12月16日,注冊地位于長沙市岳麓區,客戶咨詢長春石油化工行業用水。我國的石油化工企業在生產中需要用到大量的水,為了使效果達到最佳,石油化工行業用反滲透設備采用的膜分離技術,可以有效去除水中的污染物。
3.需求分析
原水:自來水
水量:0.25t/h,達到直飲水的標準
4.解決方案
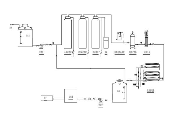
君浩環保集團的相關技術人員結合原水的水質情況和行業水質標準,為其設計了以下工藝流程:
單級反滲透設備工藝流程圖
5.設備價值
加濕器使用過程中,水質不好容易滋生細菌和霉菌以及其他物質,影響設備的整體使用壽命和產品質量。君浩環保集團生產的單級反滲透設備擁有以下應用價值:
(1)安全性高
采用304不銹鋼材質的罐體,不僅防腐防爆、而且耐高溫,密封性好;
(2)出水達標
反滲透膜組件是來自美國陶氏ro級反滲透膜,過濾精度低至0.0001微米;
(3)自動操作
與此同時,設備采用全自動操作系統,電腦控制,維護簡單,大大節省了人力成本。
6.現場照片





